Infos

Raumgestaltung

für die Büros der Cover Media AG


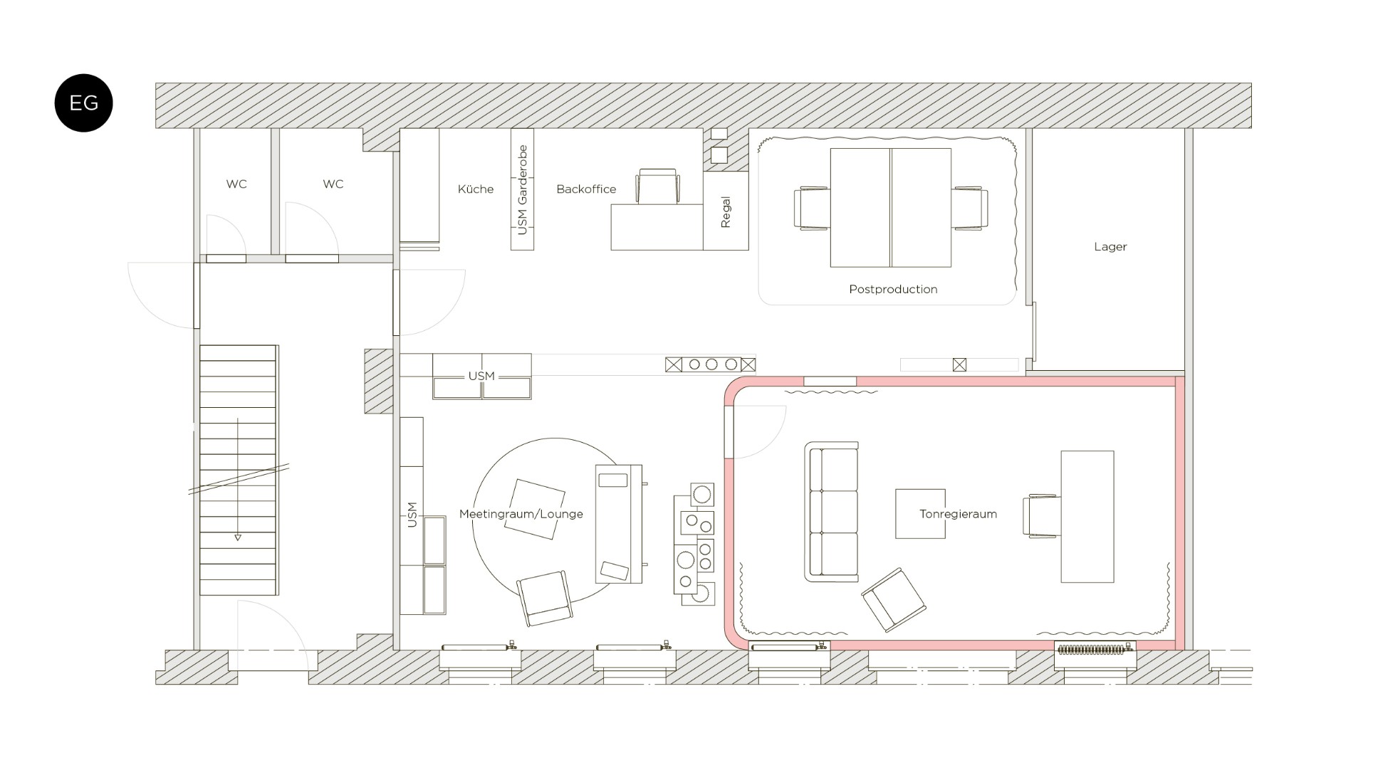
Für Cover Media durften wir die komplette Neugestaltung der Arbeitsräume im Erd- und Obergeschoss begleiten. Am Anfang stand eine Bedarfsabklärung mit dem ganzen Team – so konnten wir die Arbeitsweisen und Wünsche direkt in die Planung aufnehmen.

 

Im Erdgeschoss entstand ein Raum-im-Raum-Konzept mit neuem Tonregieraum, ergänzt durch Bereiche für Postproduction, Color-Grading und Backoffice sowie eine einladende Lounge für Kund:innen und das ganze Team.

 

Im Obergeschoss haben wir einen offenen Lunch- und Sitzungsbereich geschaffen, Ordnung in Stauraum und Arbeitsplätze gebracht und Platz für Drucker und Garderobe definiert. Für ein Einzelbüro wurde zudem eine akustische Lösung mit neuer Trennwand in Zusammenarbeit mit kustermartin & co. umgesetzt.

 

Wir begleiteten das Projekt von der Idee bis zur Fertigstellung – vom Vorprojektstart im Mai 2024 bis zum Abschluss im Juni 2025. Entstanden ist ein moderner und lebendiger Arbeitsort, der Funktionalität, Atmosphäre und Wohlbefinden vereint.

Jahr

2024–2025

Leistungen

Vorprojekt und Beratung

Gestaltung

Koordination und Projektmanagement

Fotografie

Lara Scheidegger
Ursina Guntern

Gelistet unter
Signaletik + Raum

Raumgestaltung
Cover Media